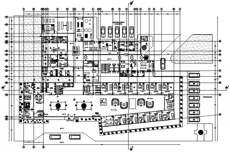
Low plan of hospital in AutoCAD file
Description
Low plan of hospital in AutoCAD file its include detail of area area distributing and view of circulation aof area with necessary view with main entry way clinic area hall washing area different medical consultant and view of laboratory and patient area in file
Uploaded by:
Eiz
Luna

